Neubau eines Fachwerkhauses von Familie Heller

Projektdaten

Planung:
Bodo Mann
Mann Planungsgesellschaft m.b.H.
Wallgasse 2
61194 Niddatal-Assenheim

Bauleitung, Selbstbaubetreuung:
Klaus Schillberg, TEX-BIS Naturbaustoffe GmbH/61130 Nidderau
Das Selbstbau-Projekt befindet sich zur Zeit in der Innenausbauphase.

Konstruktion Außenwände:
Fachwerkausmauerung mit 2DF Holzleichtlehmsteinen.
Vorsatzschale mit 6cm TEX_BIS Lehmbauplatten, Zwischenfüllung mit Hanfleichtlehm.
Auf Lehmbauplatten 2-lagiger Lehmputz mit Gewebeeinlage, farbiger TEX-BIS Lehmedelputz /geplant)

Konstruktion Innenwände:
im EG Fachwerkausmauerung mit 2DF Massivlehmvollsteinen.
Im OG Ausmauerung mit gelochten Lehmsteinen 2DF, teils mit Schilfrohrgewebe + Lehmputz, teils als Sichtfachwerk mit Lehmoberputz

Weitere Projekt-Infos sowie Kontaktaufnahme zwecks Baustellenbesichtigung: Klaus Schillberg email: klaus-schillberg@texbis.de

Bilder zum Neubau von Familie Heller

(zum Vergrößern anklicken)


Außenansicht


Außenansicht


Außenansicht


Außenansicht


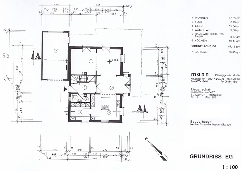
Grundriss


Grundriss


Grundriss


Schnitt